Villa de Autor

theia

" Una finca mediterránea de ensueño"

terreno

21.922 m2

Construido

467 m2

Plantas

2

Dormitorios

7

Baños

5

Parking

1

Precio

995.000 €

adecuación

295.000 €

Concepto

Finca Rústica

Fecha de Proyecto

2026

Tiempo de Ejecución

5 Meses 

Localización

Calpe. Alicante

Autor del Proyecto

RENOVHOUSE Studio

Villa Theia es una propiedad excepcional compuesta por una finca principal y una vivienda independiente, situada entre Benissa y Calpe sobre una impresionante parcela privada de 21.922 m².

Villa Theia está rodeada de naturaleza y absoluta tranquilidad, ofrece vistas abiertas al campo y al Mediterráneo, convirtiéndose en una oportunidad única tanto para residencia privada como para inversión de alto potencial.

La residencia principal, construida en 1998, refleja el auténtico carácter de una casa de campo mediterránea, con techos altos adornados con vigas de madera maciza, carpintería exterior de madera con doble acristalamiento y elegantes suelos de terracota que aportan calidez y personalidad.

En la planta baja encontramos un garaje, cocina independiente con lavadero, y dos amplios salones con techos elevados y chimenea, ideales para crear ambientes acogedores y sofisticados. Además, dispone de dos dormitorios con baño en suite y acceso directo a la zona de piscina, integrando interior y exterior de forma natural.

La planta superior alberga un espacioso distribuidor, un dormitorio adicional y una magnífica suite principal con baño privado y salida directa a una terraza panorámica desde donde se contemplan vistas abiertas al valle, al mar y al emblemático pueblo de Calpe.

El exterior está diseñado para disfrutar plenamente del estilo de vida mediterráneo: amplia terraza cubierta con zona de bar, gran piscina, jacuzzi y sauna. La cocina de verano —lista para personalizar con electrodomésticos— permite crear veladas inolvidables al aire libre, disfrutando del clima privilegiado y las vistas hasta bien entrada la noche.

La segunda vivienda, totalmente independiente y con acceso propio, dispone de cocina, salón, tres dormitorios, dos baños y trastero, además de una terraza cubierta con vistas abiertas infinitas. Esta configuración garantiza privacidad absoluta y un excelente potencial para alquiler.

Aunque ambas propiedades requieren actualización, Villa Theia representa una oportunidad extraordinaria para transformar este enclave en una residencia de lujo única, fusionando autenticidad mediterránea, amplitud y exclusividad en un entorno incomparable.

Estado Actual

La arquitectura de esta vivienda responde con claridad a la tipología tradicional mediterránea, reinterpretada con una escala generosa y una implantación privilegiada dentro de una finca privada de 21.922 m².

Se trata de una construcción de volumetría horizontal y proporciones equilibradas, donde los distintos cuerpos se articulan de forma orgánica alrededor de las zonas exteriores. La cubierta inclinada de teja cerámica árabe, las fachadas en tono crema y los detalles en madera natural refuerzan su carácter mediterráneo atemporal.

La composición arquitectónica combina:

  • Muros macizos enfoscados, que aportan solidez y aislamiento térmico.

  • Cubiertas inclinadas de teja tradicional, que integran la vivienda en el paisaje.

  • Carpinterías de madera con arcos de medio punto, que evocan la arquitectura levantina clásica.

  • Porches cubiertos y terrazas que actúan como transición natural entre interior y exterior.

Uno de los rasgos más destacados es la relación directa con el entorno. La vivienda se abre hacia el jardín y la piscina mediante grandes ventanales y espacios porticados que generan sombra y profundidad. La zona exterior se integra arquitectónicamente como una extensión natural de la casa, especialmente en el área de piscina y bar cubierto, concebidos como auténticos espacios habitables.

La implantación sobre una ligera elevación dentro de la parcela permite disfrutar de vistas abiertas al paisaje montañoso y al entorno natural, reforzando la sensación de privacidad y dominio visual del terreno. La finca, poblada de palmeras, vegetación autóctona y amplias zonas ajardinadas, enmarca la arquitectura y potencia su carácter de refugio mediterráneo.

En conjunto, la propiedad transmite una arquitectura sólida, serena y funcional, donde tradición y amplitud conviven en armonía con el paisaje, ofreciendo una imagen de finca mediterránea de gran escala y vocación residencial de alto nivel.

Proyecto de Adecuación

La transformación de la villa no solo e sólo estética, sino también conceptual: hemos pasado de una vivienda con carácter tradicional y funcional a un espacio con identidad, coherencia y una experiencia mucho más emocional para quien la habita.

1. Reordenación y jerarquía visual del espacio exterior

En el estado inicial, la arquitectura y el entorno competían visualmente: vegetación abundante, distintos niveles y elementos sin una narrativa clara.

Con la reforma hemos:

  • Unificado el lenguaje visual entre arquitectura y paisaje, potenciando la pureza de los volúmenes blancos.
  • Simplificado líneas y perspectivas para que la vivienda sea la protagonista.
  • Generado una lectura más limpia y elegante desde cualquier punto del jardín.

Ahora la casa se percibe más contemporánea, más luminosa y con una presencia mucho más sólida en el entorno.

2. Mejora de la conexión interior–exterior

Uno de los cambios más importantes ha sido reforzar la relación entre el interior y la zona de piscina y terraza.

  • Se ha potenciado la apertura visual a través de grandes ventanales.
  • La iluminación interior cálida crea un efecto acogedor al atardecer.
  • El exterior ya no es solo una zona de piscina, sino una extensión natural del salón y las áreas de día.

El resultado es una vivienda que invita a vivirla tanto de día como de noche, ampliando la experiencia más allá de los límites físicos.

3. Materialidad más cálida y coherente

Hemos respetado el carácter mediterráneo, pero refinándolo:

  • La teja tradicional se mantiene como guiño local, pero ahora dialoga con acabados más cuidados.
  • La pavimentación de barro aporta textura y autenticidad.
  • Se ha trabajado una paleta neutra y atemporal que transmite calma y elegancia.

La sensación general es de mayor calidad, más detalle y una atmósfera más sofisticada.

4. Iluminación como elemento protagonista

En la imagen reformada se aprecia claramente el cambio:

  • Iluminación perimetral que enmarca la arquitectura.
  • Luz cálida interior que genera profundidad.
  • Iluminación puntual en el jacuzzi y piscina que aporta un toque experiencial y casi hotelero.

Este trabajo de iluminación no solo mejora la estética, sino que transforma completamente la percepción del espacio al caer la noche.

5. Nueva experiencia de bienestar

La incorporación y adecuación de la zona de spa/jacuzzi, junto con una terraza más ordenada y acogedora, convierte la vivienda en un espacio de descanso real.

Ya no hablamos solo de una villa con piscina, sino de:

  • Un refugio privado.
  • Un espacio pensado para desconectar.
  • Una propiedad con un claro enfoque lifestyle.

La villa ahora no solo se ve mejor: se siente mejor. Hemos elevado su valor percibido, su carácter y su capacidad de emocionar desde el primer instante.

La vivienda principal se encuentra en un estado excelente, permitiendo su disfrute inmediato. El proyecto de interiorismo nace con un objetivo claro: elevar la experiencia espacial, optimizando la distribución y potenciando la luz, la amplitud y la conexión con el entorno.

En el Dormitorio 2, la reubicación estratégica del armario libera metros y transforma la estancia en un espacio más limpio, luminoso y equilibrado.

El Dormitorio 1 evoluciona hacia una auténtica suite de mayor categoría. La reorganización del baño y la integración del armario del pasillo permiten ampliar notablemente la superficie, generando un ambiente más elegante, cómodo y acorde a una villa de alto standing.

El antiguo living del ala izquierda se redefine para dar paso a dos nuevos dormitorios, incrementando la capacidad de la vivienda sin alterar su armonía arquitectónica.

La intervención más transformadora del proyecto es, sin duda, la creación de un gran espacio social abierto, donde el antiguo garaje, la sauna y el living exterior se fusionan en una única estancia contemporánea que integra cocina y dining room interior–exterior. Este nuevo corazón de la casa disfruta de increíbles vistas abiertas y acceso directo a la piscina, consolidando una conexión absoluta entre interior y paisaje. El resultado es un espacio diseñado para el disfrute, la convivencia y el estilo de vida mediterráneo en su máxima expresión.

La villa se redefine así como una propiedad de alto nivel, con una distribución optimizada, sofisticada y perfectamente alineada con su entorno natural.

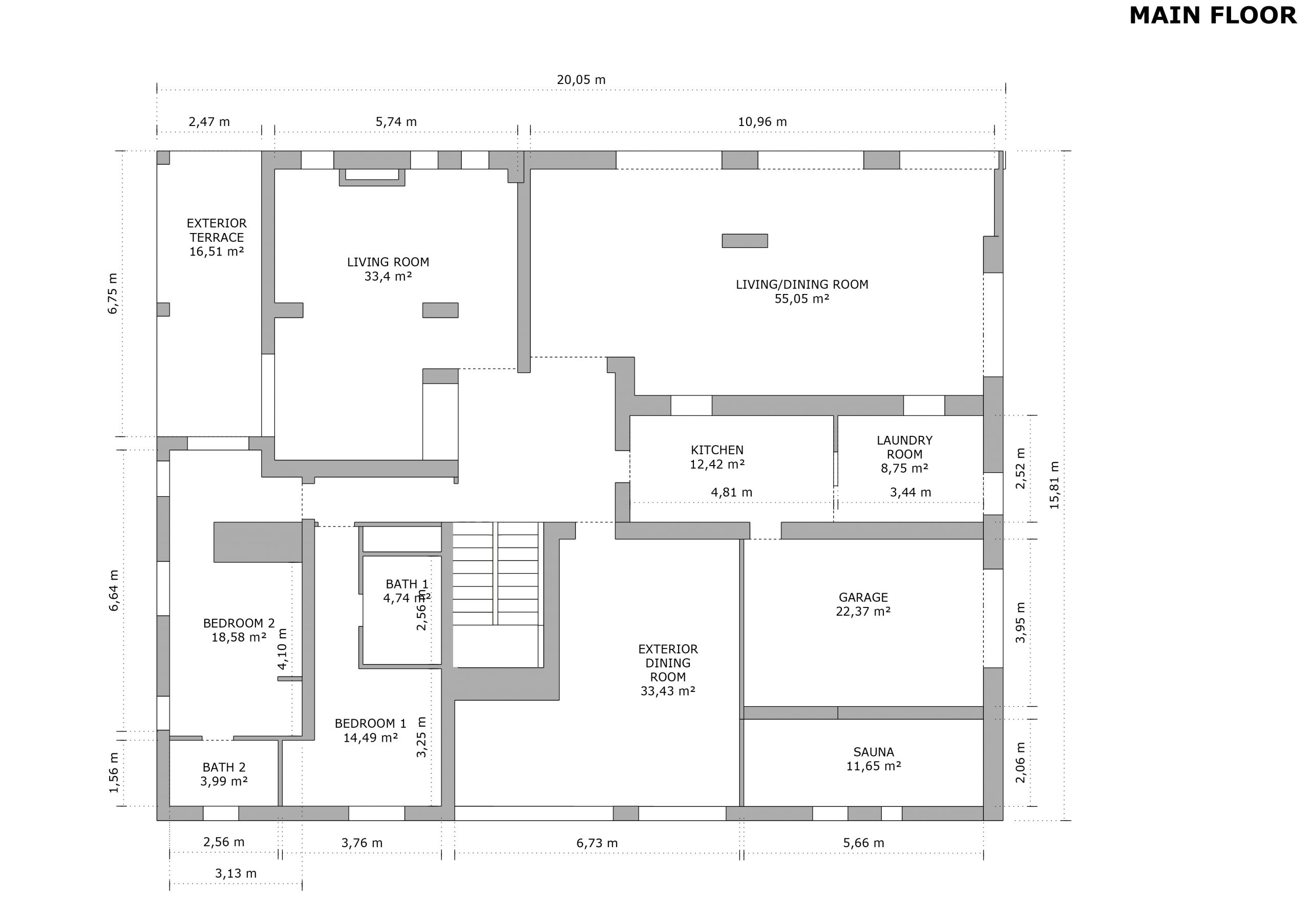
Planos Antes de la Adecuación

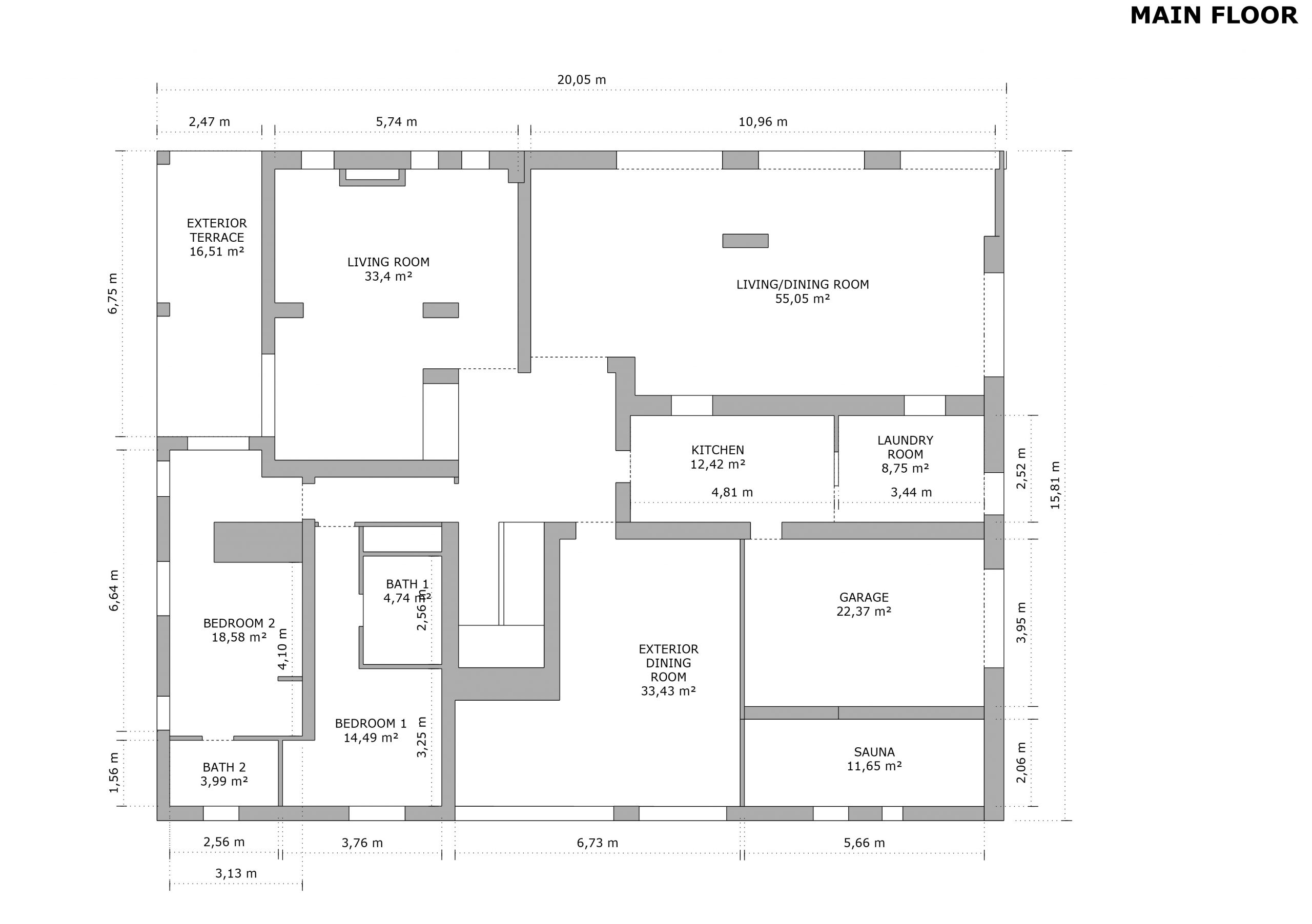
Plano Planta Principal Despues de la Adecuación

Optimizamos y dotamos de más dormitorios la vivienda.

  • El actual Living Room y la terraza exterior, lo convertimos en dos amplios dormitorios con baños privados.
  • El garaje y el actual comedor de exterior lo convertimos en una amplia cocina con el comedor integrado y un segundo Living más enfocado a la piscina.
  • En ese espacio tambien creamos una gran zona de despensa y lavadero.
  • También reubicamos la sauna.

Living

Cocina / Living II

Parking para 2 Vehículos

Este garaje es mucho más que un simple espacio para aparcar: es una extensión elegante de la vivienda que combina diseño, calidad y funcionalidad.

Se trata de un porche para vehículos de estilo mediterráneo, construido en madera maciza con acabados cálidos y naturales que aportan carácter y distinción. La cubierta a dos aguas con teja tradicional refuerza su estética premium y garantiza una protección óptima frente al sol y la lluvia.

Su estructura robusta, con vigas vistas y refuerzos artesanales, transmite solidez y cuidado en cada detalle. El cerramiento lateral de lamas de madera aporta privacidad sin perder ventilación ni ligereza visual, manteniendo un ambiente abierto y sofisticado.

Con capacidad para dos vehículos de gran tamaño, ofrece amplitud, comodidad de maniobra y una altura generosa. El pavimento de piedra natural integra el conjunto en el entorno, creando una imagen armónica y de alto nivel.

Coste Estimado de la Adecuación y Qué Incluye

El estudio de interiorismo RENOVHOUSE , ha evaluado el coste de la adecuación en  295.000 euros + IVA.

El precio incluye:

  • Cambio de todas las ventanas de la vivienda y pintado de la fachada.
  • Nueva distribución con la creación de los dos nuevos dormitorios con baño y la reforma de los dormitorios ya existentes y baños de la planta inferior.
  • La reconversión del garaje actual y living exterior en cocina + living room + laundry. Incluye todos los trabajos de obra, levantamiento de tabiques, revestimientos de suelo, pintura y ayudas a las nuevas instalaciones.
  • Reubicación de todas las instalaciones del garaje, nueva fontanería, electricidad y climatización de las nuevas zonas.
  • Mobiliario y equipamiento de la nueva cocina  y baños de la planta principal.
  • En el exterior la  retirada de la palmera que está junto a la nueva cocina y solado del espacio que queda en el mismo suelo exterior existente.
  • Nueva pérgola de madera para el parking de vehículos.
 
El presupuesto debe actualizarse  y adaptarse en función  del presupuesto y  las necesidades del nuevo propietario de la vivienda. 
El plazo de ejecución es de 6 meses,

Otras Villas Disponibles