Villa de Autor
Delia
" Una nueva vida para una casa histórica. "
terreno
761 m2
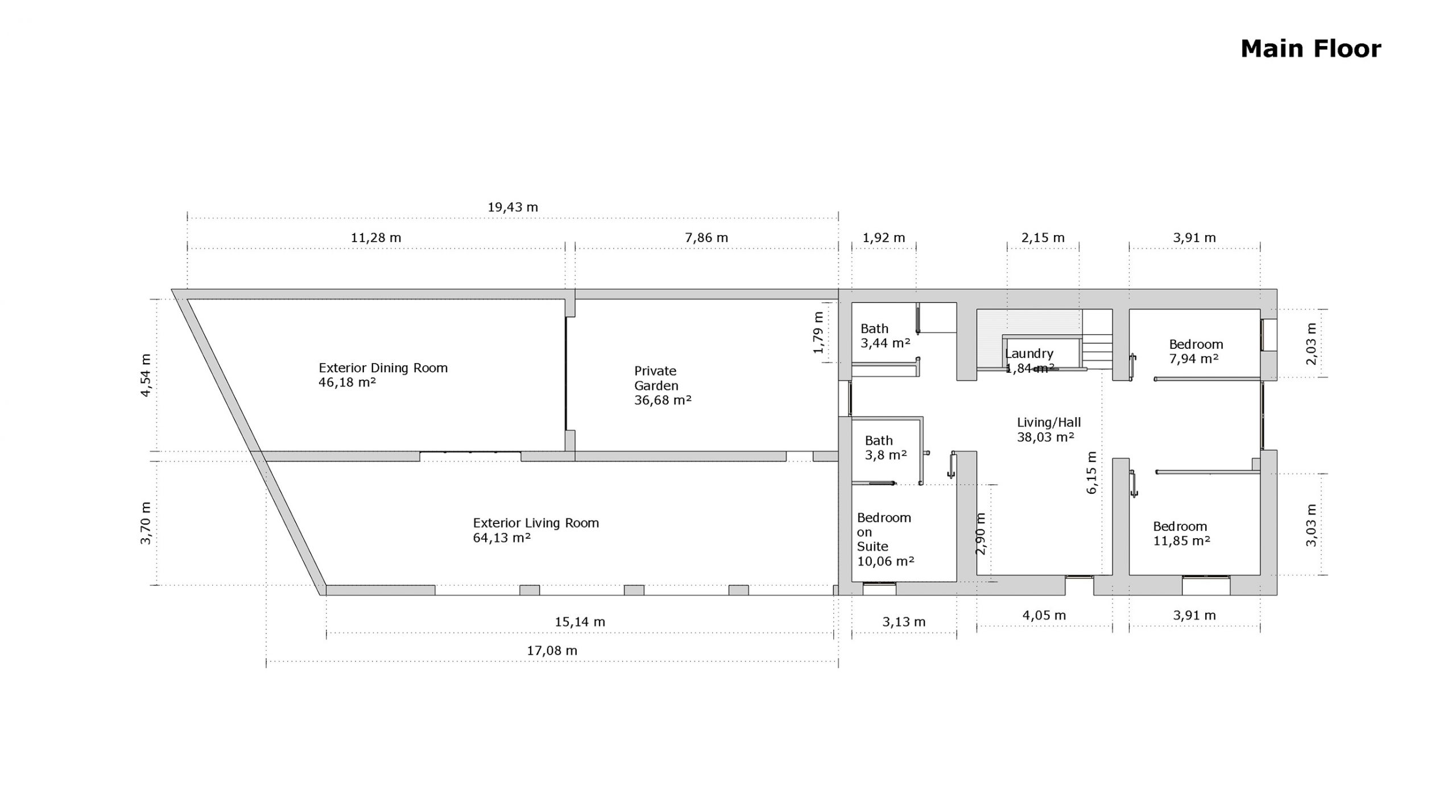
Construido
343 m2
Plantas
3
Dormitorios
4
Baños
3+Aseo
Parking
1
Precio
480.000 €
Reforma
295.000 €
Mobiliario
75.000 €
Concepto
Arquitectura Mediterránea Rustica
Fecha de Proyecto de Renovación
2026
Entrega de LLaves
Disponibilidad inmediata.
Realización de la reforma 5 meses.
Mobiliario 2 meses.
Localización
Lliber. Alicante
Proyecto realizado por
RENOVHOUSE Studio
La propiedad que estamos estudiando tiene algo muy valioso: autenticidad.
La propiedad que estamos estudiando tiene algo muy valioso: autenticidad.
Muros de piedra originales, arcos tradicionales, un gran porche orientado al jardín y una volumetría típica de las casas del valle de Jalón.
Actualmente la vivienda se encuentra en un estado que requiere una renovación importante, pero precisamente ahí está la oportunidad: transformarla en una casa mediterránea contemporánea de gran valor arquitectónico y emocional.
Nuestra propuesta no busca simplemente reformar la casa, sino revelar su potencial y convertirla en una vivienda única, respetando su esencia rural pero elevándola a un nivel de diseño y confort actual.
La propuesta arquitectónica se basa en tres principios fundamentales:
- Respetar la arquitectura original
Se conservan los muros de piedra, los arcos y la volumetría tradicional. - Introducir una estética mediterránea contemporánea
Superficies blancas, madera natural, piedra vista y materiales nobles. - Abrir la casa a la luz y al paisaje
Ventanas nuevas de madera, espacios abiertos y conexión interior–exterior.
El resultado es una vivienda que mantiene su carácter de casa de pueblo histórica, pero con la experiencia de una villa mediterránea contemporánea.
El exterior: recuperar el corazón mediterráneo
La fachada actual tiene una estructura con mucho potencial, pero el entorno está descuidado y la arquitectura no se aprecia en todo su valor.
La propuesta es transformar completamente la experiencia exterior.
Intervenciones principales
Restauración de los muros de piedra existentes
Revestimiento en cal blanca en los volúmenes secundarios
Carpintería de madera natural
Iluminación arquitectónica cálida
Paisajismo mediterráneo con olivos, lavanda y grava natural
El objetivo es crear un patio mediterráneo elegante, donde el protagonista sea un gran olivo central que articule el jardín.
Este espacio se convertirá en el centro de la vida social de la casa.
El interior: luz, calma y amplitud
Actualmente el interior se percibe oscuro y fragmentado.
La propuesta consiste en abrir el espacio y devolver protagonismo a los elementos arquitectónicos originales.
Recuperación de arcos de piedra
Vigas de madera vistas
Paredes en cal blanca
Pavimento porcelánico efecto cemento mate beige
Carpintería de madera natural
En la planta superior se acondicona todo el espacio abierto que integra:
cocina
comedor
zona de estar
Este espacio se convertirá en el corazón de la vivienda, donde la arquitectura tradicional dialoga con un diseño contemporáneo muy limpio.
Los dormitorios: calma y elegancia natural
La propuesta para los dormitorios se basa en crear espacios serenos, luminosos y atemporales.
En la planta superior disponemos del dormitoiro principal con un vestidor y zona de trabajo y un baño .
En la planta inferior la actual cocina eliminamos y con ese espacio ampliamos el dormitorio conjunto y lo equipamos con un baño propio.
Un diseño minimalista mediterráneo basado en:
tonos arena
lino natural
madera maciza
cerámica artesanal
Elementos principales
camas de madera natural
textiles de lino
cortinas ligeras
iluminación cálida indirecta
El objetivo es que cada dormitorio se perciba como un pequeño refugio de calma.
Los baños: simplicidad y materiales nobles
Los baños se plantean como espacios muy depurados y elegantes.
Pavimento porcelánico efecto cemento mate beige
Paredes en microcemento
Ducha abierta tipo walk-in
Mampara de vidrio minimalista
Lavabos integrados
Se busca un ambiente muy relajante y sofisticado, alineado con el concepto general de la vivienda.
Valor añadido de la intervención
Esta renovación no solo mejora la estética de la casa. También incrementa significativamente su valor inmobiliario.
1. Revalorización del inmueble
Una casa reformada con este nivel de diseño se posiciona en un segmento alto del mercado.
2. Arquitectura atemporal
Materiales naturales que envejecen bien y no pasan de moda.
3. Experiencia mediterránea auténtica
La vivienda refleja perfectamente el estilo de vida del valle de Jalón.
4. Alta deseabilidad en mercado internacional
Este tipo de propiedades tienen gran demanda entre compradores europeos.
Conclusión
Lo que hoy vemos como una casa que necesita reforma, en realidad es una oportunidad extraordinaria.
Con esta intervención la propiedad puede transformarse en:
una casa mediterránea única
un refugio de diseño y tranquilidad
una inversión inmobiliaria muy atractiva
El proyecto no solo recupera la casa. Le devuelve su alma y la proyecta hacia el futuro.





